- +7 (969) 605-86-86, 8 (831) 323-53-13
- г. Бор, ул. Ленина, дом 102, офис 15
- ansobst19@mail.ru
ЖК МОЛОДЕЖНЫЙ
Застройщик ООО СЗ "СОБСТВЕННОСТЬ"
Класс энергоэффективности здания: A
Генподрядчик ООО "НОВЫЕ РЕШЕНИЯ" (ИНН: 5246055016)
Общество с ограниченной ответственностью специализированный застройщик «Собственность» завершило строительство многоквартирного жилого дома, расположенного по адресу: Нижегородская область, город Бор, п.Октябрьский, ул. Молодежная, д. 4А
НА ВВОД ОБЪЕКТА В ЭКСПЛУАТАЦИЮ № 52-20-38-2024 от 02.12.2024
Проектная декларация размещена на сайте наш.дом.рф
Официальный партнер проекта


ПЛАНИРОВКА КВАРТИР 1 ЭТАЖА

ПЛАНИРОВКА КВАРТИР 2 ЭТАЖА
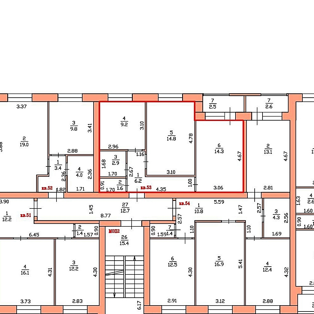
ПЛАНИРОВКА КВАРТИР 3 ЭТАЖА

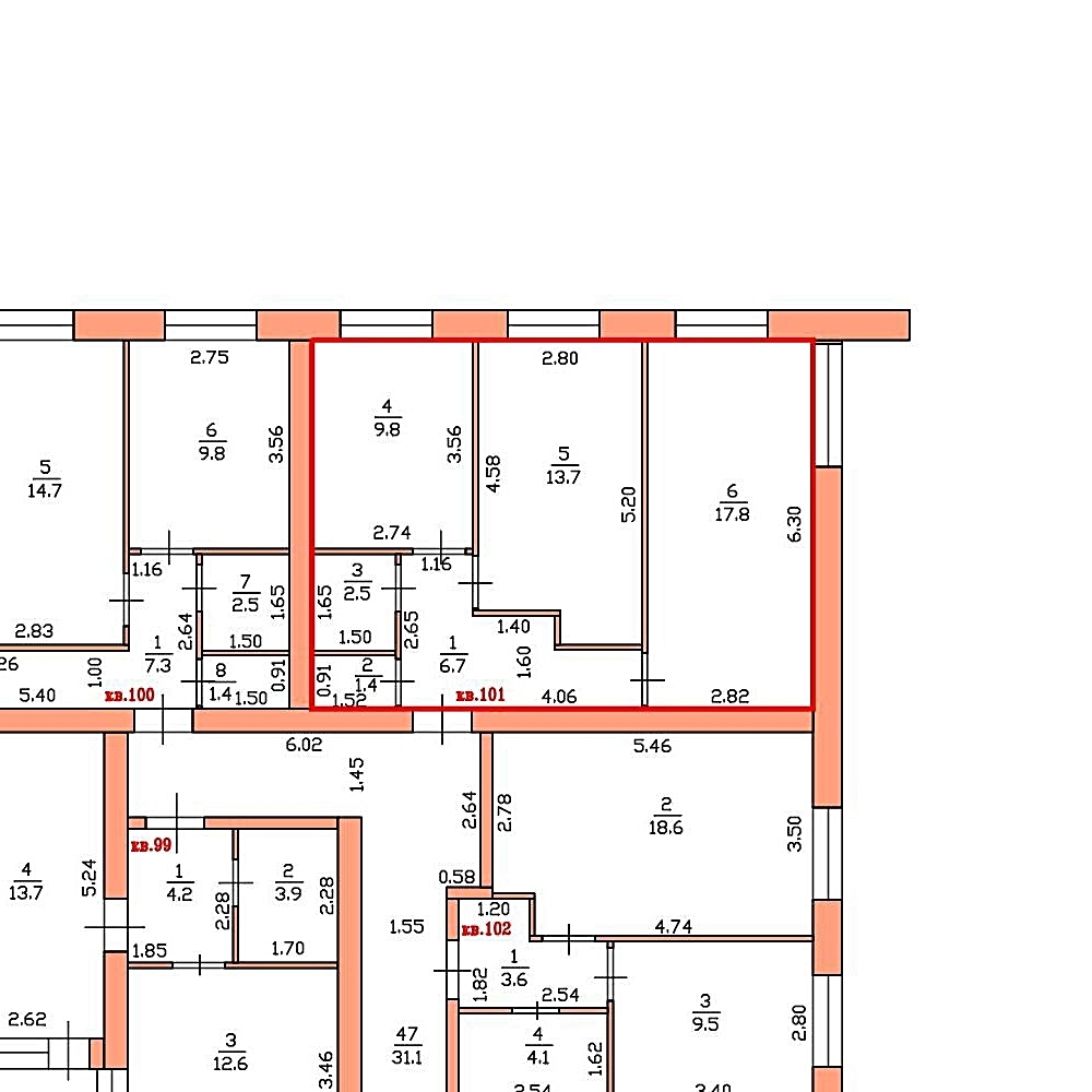
ПЛАНИРОВКИ СВОБОДНЫХ КВАРТИР 3 ЭТАЖА
ПЛАНИРОВКА КВАРТИР 4 ЭТАЖА

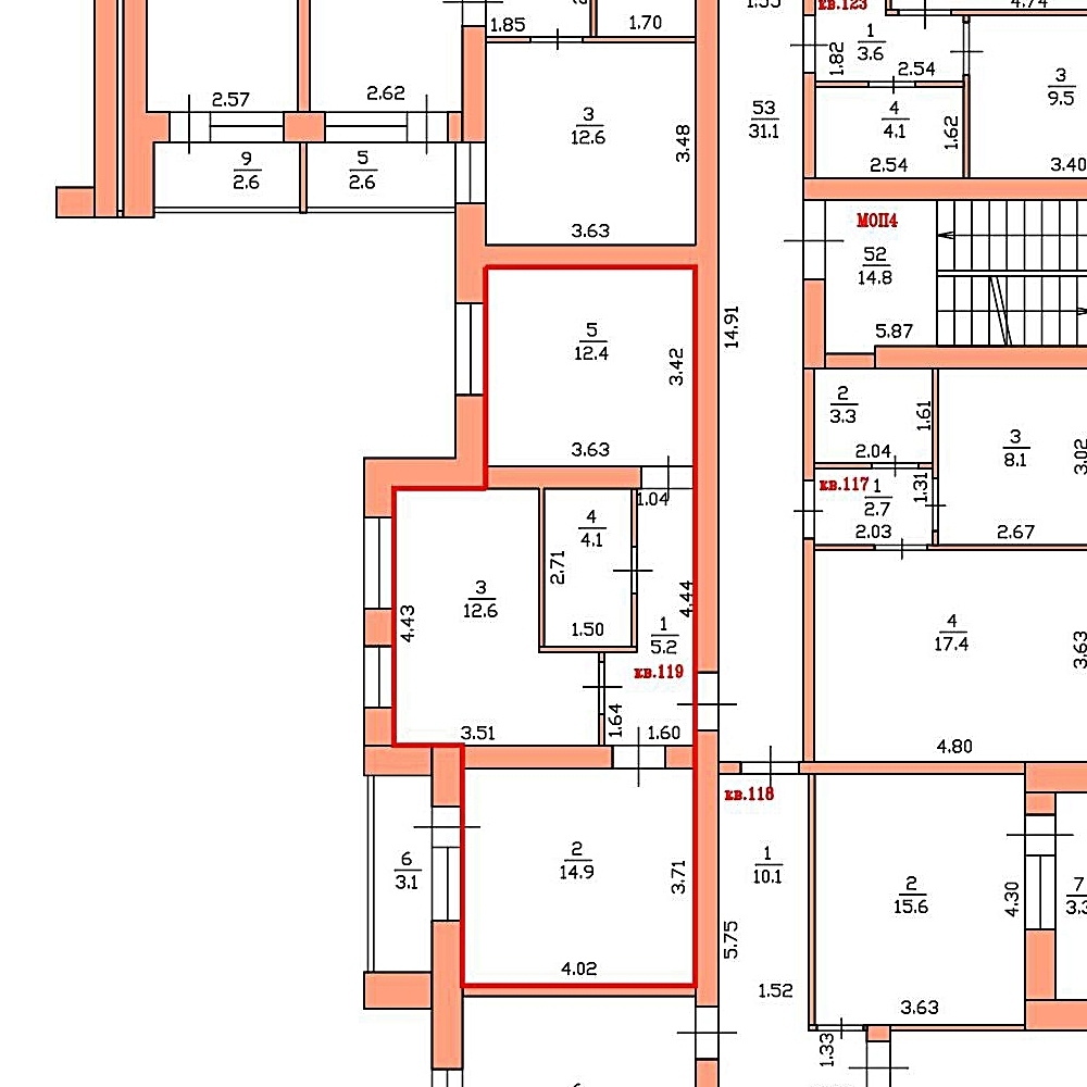
ПЛАНИРОВКИ СВОБОДНЫХ КВАРТИР 4 ЭТАЖА
ПЛАНИРОВКА КВАРТИР 5 ЭТАЖА

ПЛАНИРОВКИ СВОБОДНЫХ КВАРТИР 5 ЭТАЖА
Основные характеристики
| Класс недвижимости | Комфорт |
| Материал стен | Кирпич |
| Свободная планировка | Нет |
| Количество этажей | 5 |
| Количество квартир | 123 |
| Жилая площадь, м² | 5 791 |
| Высота потолков, м | 2,7 |
| Система отопления | Индивидуальная |
| Количество подъездов | 4 |
Парковочное пространство
| Количество мест в паркинге | Нет |
| Гостевые места на придомовой территории | 28 |
| Гостевые места вне придомовой территории | 9 |
Безбарьерная среда
| Наличие пандуса | Есть |
| Наличие понижающих площадок | Есть |
| Количество инвалидных подъемников | Нет |
Благоустройство двора
| Велосипедные дорожки | Нет |
| Количество детских площадок | 2 |
| Количество спортивных площадок | 1 |
| Количество площадок для сбора мусора | 1 |


Актуальные цены на квартиры вы можете узнать, позвонив по номерам телефонов
или написав нам на адрес электронной почты
ansobst19@mail.ru
или обратиться к нам лично по адресу
- г. Бор, ул. Ленина, дом 102, офис 15
Квартирография по дому
1 комнатные
2 комнатные
3 комнатные
64 квартиры
45 квартир
14 квартир
Среднее количество квартир на этаже
Количество подъездов
Первый этаж нежилой
6
4
Нет
Квартирография по этажам в 1 подъезде
| ЭТАЖ | 1 КОМНАТНЫЕ | 2 КОМНАТНЫЕ | 3 КОМНАТНЫЕ | ИТОГО |
| 5 этаж | 3 квартиры от 35 до 39 м2 | 4 квартиры от 56 до 63 м2 | - | 7 квартир от 35 до 63 м2 |
| 4 этаж | 3 квартиры от 35 до 39 м2 | 4 квартиры от 56 до 63 м2 | - | 7 квартир от 35 до 63 м2 |
| 3 этаж | 3 квартиры от 35 до 39 м2 | 4 квартиры от 56 до 63 м2 | - | 7 квартир от 35 до 63 м2 |
| 2 этаж | 3 квартиры от 35 до 39 м2 | 4 квартиры от 56 до 63 м2 | - | 7 квартир от 35 до 63 м2 |
| 1 этаж | 3 квартиры от 35 до 39 м2 | 3 квартиры от 56 до 59 м2 | - | 6 квартир от 35 до 59 м2 |
Квартирография по этажам во 2 подъезде
| ЭТАЖ | 1 КОМНАТНЫЕ | 2 КОМНАТНЫЕ | 3 КОМНАТНЫЕ | ИТОГО |
| 5 этаж | 1 квартира 36 м2 | 1 квартира 52 м2 | 2 квартиры от 74 до 76 м2 | 4 квартиры от 36 до 76 м2 |
| 4 этаж | 1 квартира 36 м2 | 1 квартира 52 м2 | 2 квартиры от 74 до 76 м2 | 4 квартиры от 36 до 76 м2 |
| 3 этаж | 1 квартира 36 м2 | 1 квартира 52 м2 | 2 квартиры от 74 до 76 м2 | 4 квартиры от 36 до 76 м2 |
| 2 этаж | 1 квартира 36 м2 | 1 квартира 52 м2 | 2 квартиры от 74 до 76 м2 | 4 квартиры от 36 до 76 м2 |
| 1 этаж | 1 квартира 36 м2 | 2 квартиры от 52 до 57 м2 | 1 квартира 76 м2 | 4 квартиры от 36 до 76 м2 |
Квартирография по этажам в 3 подъезде
| ЭТАЖ | 1 КОМНАТНЫЕ | 2 КОМНАТНЫЕ | 3 КОМНАТНЫЕ | ИТОГО |
| 5 этаж | 6 квартир от 31 до 38 м2 | 1 квартира 57 м2 | - | 7 квартир от 31 до 57 м2 |
| 4 этаж | 6 квартир от 31 до 38 м2 | 1 квартира 53 м2 | - | 7 квартир от 31 до 53 м2 |
| 3 этаж | 6 квартир от 31 до 38 м2 | 1 квартира 53 м2 | - | 7 квартир от 31 до 53 м2 |
| 2 этаж | 6 квартир от 31 до 38 м2 | 1 квартира 53 м2 | - | 7 квартир от 31 до 53 м2 |
| 1 этаж | 4 квартиры от 31 до 38 м2 | 2 квартиры от 48 до 53 м2 | - | 6 квартир от 31 до 53 м2 |
Квартирография по этажам в 4 подъезде
| ЭТАЖ | 1 КОМНАТНЫЕ | 2 КОМНАТНЫЕ | 3 КОМНАТНЫЕ | ИТОГО |
| 5 этаж | 3 квартиры от 32 до 37 м2 | 3 квартиры от 52 до 65 м2 | 1 квартира 68 м2 | 7 квартир от 32 до 68 м2 |
| 4 этаж | 3 квартиры от 32 до 37 м2 | 3 квартиры от 52 до 65 м2 | 1 квартира 68 м2 | 7 квартир от 32 до 68 м2 |
| 3 этаж | 3 квартиры от 32 до 37 м2 | 3 квартиры от 52 до 65 м2 | 1 квартира 68 м2 | 7 квартир от 32 до 68 м2 |
| 2 этаж | 3 квартиры от 32 до 37 м2 | 3 квартиры от 52 до 65 м2 | 1 квартира 68 м2 | 7 квартир от 32 до 68 м2 |
| 1 этаж | 4 квартиры от 32 до 40 м2 | 3 квартиры от 52 до 65 м2 | 1 квартира 68 м2 | 7 квартир от 32 до 68 м2 |
ПЛАНИРОВКА КВАРТИР 1 ЭТАЖА
СТОИМОСТЬ 1 КВ.М. НА 1 ЭТАЖЕ ОТ 90000 РУБ.
ПЛАНИРОВКА КВАРТИР 2 ЭТАЖА
СТОИМОСТЬ 1 КВ.М. НА 2 ЭТАЖЕ ОТ 94000 РУБ.
ПЛАНИРОВКА КВАРТИР 3 ЭТАЖА
СТОИМОСТЬ 1 КВ.М. НА 3 ЭТАЖЕ ОТ 94000 РУБ.
ПЛАНИРОВКА КВАРТИР 4 ЭТАЖА
СТОИМОСТЬ 1 КВ.М. НА 4 ЭТАЖЕ ОТ 90000 РУБ.
ПЛАНИРОВКА КВАРТИР 5 ЭТАЖА
СТОИМОСТЬ 1 КВ.М. НА 5 ЭТАЖЕ ОТ 90000 РУБ.
ХОД СТРОИТЕЛЬСТВА
Связаться с нами

ОБЩЕСТВО С ОГРАНИЧЕННОЙ ОТВЕТСТВЕННОСТЬЮ
СПЕЦИАЛИЗИРОВАННЫЙ ЗАСТРОЙЩИК "СОБСТВЕННОСТЬ"
- +7 (969) 605-86-86, 8 (831) 323-53-13
- г. Бор, ул. Ленина, дом 102, офис 15
- ansobst19@mail.ru
ОГРН 1195275043754
ИНН 5246053837
КПП 524601001
Обращаем ваше внимание на то, что данный интернет-сайт, а также вся информация о товарах и ценах, предоставленная на нём, носит исключительно информационный характер и ни при каких условиях не является публичной офертой, определяемой положениями Статьи 437 Гражданского кодекса Российской Федерации.


































































